【第三部分】何為標注比例?如何設置標注比例?
首先我們可以把CAD中的“標注比例”簡單地劃分為“標注幾何比例”以及“標注數值比例”兩大部分,“標注幾何比例”即在出圖后,該標注在紙張上的大小關系,比如字體的大小、線端頭的長度等等;而“標注數值比例”則是指該標注讀取線段長度后,是否需要乘以一個系數來作為該線段的表示長度。
文字部分講完,下面是用圖片舉個例子:

在此對于圖中數值有疑惑的做一個科普小解釋,首先這些數值在填的時候只需要考慮這個標注在出圖以后的那張紙上用尺子去量時你想要得到的尺寸,比如字體高度就是3.5mm,箭頭那條粗斜線的長度就是2.3mm,不需要按照比例換算后寫個350mm的字體啥的,因為那是我們人類告訴電腦我們的需求后,電腦應該幫助人類去做的事。當然,如果用戶習慣或者喜好這么做的話,也是不影響出圖效果的。
----------------第一步完成--------------------------
完成了第一步,接下來還需要告訴CAD每個標注對對應的“標注幾何比例”以及“標注數值比例”:
舉個例子,一圖必殺!!!!!
首先我們可以把CAD中的“標注比例”簡單地劃分為“標注幾何比例”以及“標注數值比例”兩大部分,“標注幾何比例”即在出圖后,該標注在紙張上的大小關系,比如字體的大小、線端頭的長度等等;而“標注數值比例”則是指該標注讀取線段長度后,是否需要乘以一個系數來作為該線段的表示長度。
文字部分講完,下面是用圖片舉個例子:

首先看圖中的六根線段,其長度全部為250mm,唯一不同的是標注的比例的更改;
在此我想表達的是:
第一行的三個標注,從左到右,"標注幾何比例"分別為1、2和3,數值都是250,但是字體和字體兩端的箭頭卻一個比一個大;
而第二行的三個標注,從左到右,“標注數值比例”分別為1、2和3,大小雖然沒有發生改變,但是上面標注的數值卻由250變成了500、750,這一部分比較好解釋,就是當標注圖元讀取了線段的長度數值“250”之后,分別乘以了“標注數值比例”1、2和3,得到了大家所看到的250、500以及750。
以上為效果展示,接下來詳細解釋一下第一行的具體區別,然后解釋如何設置這些參數。
進一步舉個例子:
在此我想表達的是:
第一行的三個標注,從左到右,"標注幾何比例"分別為1、2和3,數值都是250,但是字體和字體兩端的箭頭卻一個比一個大;
而第二行的三個標注,從左到右,“標注數值比例”分別為1、2和3,大小雖然沒有發生改變,但是上面標注的數值卻由250變成了500、750,這一部分比較好解釋,就是當標注圖元讀取了線段的長度數值“250”之后,分別乘以了“標注數值比例”1、2和3,得到了大家所看到的250、500以及750。
以上為效果展示,接下來詳細解釋一下第一行的具體區別,然后解釋如何設置這些參數。
進一步舉個例子:

上圖中紅色部分為批注,紅色的尺寸為將圖片打印至A3圖紙后用尺子測量的數值,不難發現,第二行的數值是按照1:2:3的規律增長的,同樣,第一行的字體大小也是按照1:2:3的規律變大的,兩端的箭頭也是同理。
--------------------------------------------------------------如何設置?----------------------------------------------------------
--------------------------------------------------------------如何設置?----------------------------------------------------------

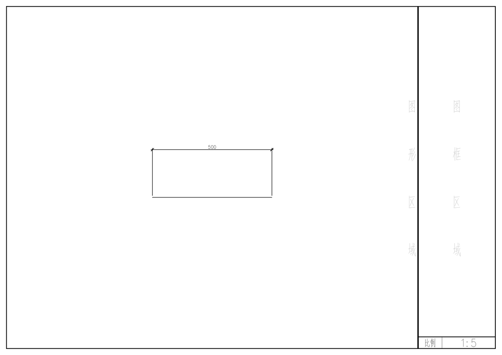
這是一個典型的標注,首先給各部分的定義:
500數字的部分叫做“標注字體”;500下面的那條線叫做“尺寸線”;尺寸線兩端的粗斜線叫做“標注箭頭”;標注箭頭處與尺寸線垂直的兩條線叫做“尺寸界線”;尺寸界線與所標注的圖元處有一個點,叫做“標注起點”;而調整一個標注的“幾何比例”就是在調整以上幾個參數;
接下來是 標注<=>設置參數 的對應關系,一圖必殺!!!
【第一步:告訴CAD你想要的尺寸標注是什么樣的】
500數字的部分叫做“標注字體”;500下面的那條線叫做“尺寸線”;尺寸線兩端的粗斜線叫做“標注箭頭”;標注箭頭處與尺寸線垂直的兩條線叫做“尺寸界線”;尺寸界線與所標注的圖元處有一個點,叫做“標注起點”;而調整一個標注的“幾何比例”就是在調整以上幾個參數;
接下來是 標注<=>設置參數 的對應關系,一圖必殺!!!
【第一步:告訴CAD你想要的尺寸標注是什么樣的】

在此對于圖中數值有疑惑的做一個科普小解釋,首先這些數值在填的時候只需要考慮這個標注在出圖以后的那張紙上用尺子去量時你想要得到的尺寸,比如字體高度就是3.5mm,箭頭那條粗斜線的長度就是2.3mm,不需要按照比例換算后寫個350mm的字體啥的,因為那是我們人類告訴電腦我們的需求后,電腦應該幫助人類去做的事。當然,如果用戶習慣或者喜好這么做的話,也是不影響出圖效果的。
----------------第一步完成--------------------------
完成了第一步,接下來還需要告訴CAD每個標注對對應的“標注幾何比例”以及“標注數值比例”:
舉個例子,一圖必殺!!!!!

左下角圖為“標注幾何比例”,CAD會根據之前文字、箭頭、起點偏移長度自動乘以該比例,而達到放大標注幾何尺寸的目的。
右下角圖為“標注數值比例”,CAD會根據所標注圖元的長度自動乘以該比例,然后輸出結果數值,圖中第二行的三個數值可以清楚地表現該比例的效果。該比例的使用場景參見第二部分的方案A,就是在1:100的圖框里放一個1:20的詳圖,由于繪圖比例變成了1:5,所以該詳圖所使用的標注比例其“標注數值比例”則變為了5,這樣,其所表達的數值才是我們想要表達的確切數值。
右下角圖為“標注數值比例”,CAD會根據所標注圖元的長度自動乘以該比例,然后輸出結果數值,圖中第二行的三個數值可以清楚地表現該比例的效果。該比例的使用場景參見第二部分的方案A,就是在1:100的圖框里放一個1:20的詳圖,由于繪圖比例變成了1:5,所以該詳圖所使用的標注比例其“標注數值比例”則變為了5,這樣,其所表達的數值才是我們想要表達的確切數值。
相關文章
- 2016-07-26蕪湖精裝修現代混搭風格CAD施工圖+效果圖布局出圖
- 2014-08-25生活垃圾衛生填埋場中監測孔設置圖
- 2013-04-25設計研究院出圖的一套一千多方的精裝修辦公室圖紙
- 2013-03-04反鏟式挖掘機運動仿真(有模型、動畫、參數設置、包絡圖
- 2012-04-21某縣城供水管網工程施工圖免費下載
- 2011-09-26CAD批量打印大師 V2.5 綠色中文版
- 2011-07-30AutoCAD 2009中文版建筑電氣工程制圖實例精解
- 2011-07-28AutoCAD應用技巧與常見問題你問我答—機械設計篇
- 2011-07-28AutoCAD 2008工程繪圖
- 2011-07-27AutoCAD 2009基礎教程PDF免費下載