板料零件數控漸進成形工藝是一種通過數字控制設備,采用預先編制好的控制程序逐點成形板料零件的柔性加工工藝。該工藝不需要專用模具,成形極限較大,重復性好,可控制金屬流動,能加工出形狀復雜的自由曲面,適合于航天、汽車工業等的小批量、多品種、形狀復雜的板料零件加工,有著十分誘人的發展前景。但是迄今為止,國際上對數控漸進成形工藝的研究也只處于探索階段,理論方面的分析較少且不成熟,對于該工藝的成形和控制方面還有待于發展完善。
隨著有限元分析技術的飛速發展以及計算機性能的不斷提高,一個融入了計算機圖形學、數值方法、塑性成形理論與工藝等各類技術的模擬軟件系統已逐漸成為板料數控漸進成形研究及成形優化的強有力的工具。
本文就引入有限元模擬技術對板料零件數控漸進成形工藝的成形過程進行模擬方面的探討。
2.金屬板料數控漸進成形原理
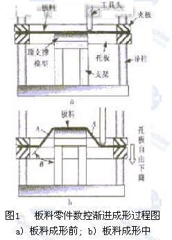
板料零件數控漸進成形的加工過程如圖1所示。數控成形系統主要由工具頭(成形工具)、導向裝置、芯模和機床本體組成。工具頭在數控系統的控制下進行運動,芯模起支撐板料的作用,對于形狀復雜的零件,該芯模可以制成簡單的模具,有利于板料的成形。
成形時,首先將被加工的板料置于一個通用芯模上,在托板四周用壓板夾緊板料,該托板可沿導柱上下滑動。然后將該裝置固定在三軸聯動的數控成形機上,加工時,成形工具先走到指定位置,并對板料壓下設定壓下量,然后根據控制系統的指令,按照第一層輪廓的要求,以走等高線的方式,對板料進行單點漸進塑性加工,如圖1b所示。

3.成形過程的計算機模擬
成形過程的特點決定了金屬板料數控漸進成形的成形過程是一個同時包括幾何非線性、材料非線性和邊界條件非線性等問題的非常復雜的彈塑性大變形力學過程,其物理模型和數學模型都不同于傳統的板料單次拉深工況下的模型,必須基于板料分層成形的特點進行分層成形過程的計算機模擬,采用大變形彈塑性非線性有限元法求解分析模型,獲得工件成形過程中變形和應力的分布、成形力的變化、預測成形過程中可能產生的缺陷,為制定正確的成形工藝提供理論依據。
作為大型的通用有限元分析軟件之一,ANSYS/LS-DYNA兼有ANSYS和LS-DYNA的優點。其強大的非線性功能、多種材料模型和較強的運動加載控制在模擬板料漸進成形方面具有很大優勢。ANSYS后處理器可以很方便的將計算結果進行彩色等值、矢量圖和梯度等多種直觀顯示。經過漸進成形后板料的應力場分布、板厚變化和各種工藝參數對成形結果的影響可以直觀方便的顯示,并可有效的模擬出板料漸進成形的全過程,為金屬板料漸進成形過程中各種工藝參數的合理優化,有效地控制板料的變形過程提供理論依據。
下面對有限元模擬中模型建立、網格劃分、加載和邊界條件等關鍵方面進行分析。
有限元模型的建立和網格劃分對于板料漸進成形工藝過程的有限元模擬來說,其建模過程不是很復雜。在ANSYS本身具有的前處理模塊就可以對整個模型進行完整的描述。另外,ANSYS提供了與其他CAD軟件的專用數據接口,能夠實現與CAD軟件間無縫的幾何模型傳遞,對于較復雜的頂支撐模型可通過其他CAD軟件導入。
圖2為模擬方盒件成形的有限元模型。

該模型由工具頭、板料、托板和壓板以及頂支撐模型四部分組成,能夠較好的完成對整個成形過程的模擬。

其中d為工具頭直徑,t為板厚,△h為工具頭單層進給量。
因此網格細分區應在成形零件的外輪廓基礎上有一個相應的偏移量T0,其中T0≥R0。另外,對不同的零件形狀工具頭所走的軌跡也有所不同,相應的板料網格劃分也應采取不同的形式。圖3為成形方盒零件和圓盒零件所采取的兩種板料網格劃分形式。

工具頭的運動加載
由于工具頭的運動軌跡多為空間曲線,用ANSYS直接模擬這樣的空間曲線運動還比較困難,目前采用的方法是用若干較小的直線段對曲線進行分段逼近.每個直線段起點和終點均給以相應的坐標,坐標以相對位移增量的形式給出(相對于工具頭初始位置),且每個坐標點對應一個時間點,這樣即可完成對工具頭運動軌跡的模擬。

圖4所示為成形方盒件時,工具頭的位移軌跡加載。把X、Y、Z方向的位移增量表示為時間的函數,通過運動合成實現整個加載過程。
在工具頭運動速度控制方面,為了減少計算時間,通常采用增加工具頭運動速度的方法,在模具成形時,模擬速度一般為實際速度的100倍左右,在這里也沿用這一方法進行模擬,即縮短相鄰兩點間的時間間隔。多數情況下可獲得較好的解,當出現與實際情況不符的解時,應適當降低模擬速度。
邊界條件的處理
板料漸進成形過程中邊界條件的處理也是比較重要的一環。在實際模擬中對板料的邊界條件進行相應的簡化,建模時板料和托架及壓邊框即固連在一起,實際上即相當與將板料被壓邊框壓住的部分自由度全部限制住,僅給予托架沿Z軸(垂直)方向的位移自由度,對頂支撐模型約束所有的自由度,這樣即達到與實際成形情況相符的目的。
模擬結果的后處理
后處理是指檢查分析的結果,這是分析中最重要的一環。ANSYS本身自帶有兩個后處理器可用以顯示和分析模擬的結果。POST1通用后處理器可以觀察整個模型或模型的一部分在某個時間上針對特定載荷組合時的結果,可進行模擬結果彩色等值云圖、梯度、矢量圖等顯示,以及各種結果數據的列表。可將成形板料的變形圖以及應力、應變分布圖顯示出來。關鍵點的數據結果還可以列表顯示保存。POST26為時間歷程后處理器,可在瞬態分析中以圖形表示產生結果項與時間的關系或在非線性分析中以圖形表示作用力與變形的關系。可用該處理器將漸進成形過程中,板料變形隨工具頭運動的變化情況顯示出來。另外LSTC公司開發的軟件LS-POST作為后處理器兼具上述兩個后處理器的特點,操作簡單快捷。圖5為板料漸進成形模擬及用LS-POST顯示方盒件加工到第四層時的塑性應變圖。

4. 結束語
金屬板料漸進成形不同于傳統的整體成形,影響工件質量的因素非常復雜,金屬板料漸進成形的有限元模擬可以對成形參數進行優化,對成形結果進行預測以及缺陷診斷,是改進這一成形工藝的強有力的工具。然而這一模擬還處于起步階段,板料漸進成形是一個涉及多門學科的塑性成形過程,在使用有限元方法進行板料漸進成形過程模擬方面還需要在以下幾個方面進行進一步研究:
(1)對工具頭較復雜的曲線運動進行模擬還存在一定困難。目前大多進行規則曲面的模擬,因此在較復雜的軌跡加載方面需對ANSYS進行二次開發。 #p#分頁標題#e#
(2)對于模擬過程中影響板料變形的參數和成形結果之間的關系需進一步分析,如工具頭的運動速度、單層進給量和邊界條件等,建立影響板料變形的參數數據庫,為優化模擬參數,預測板料變形提供理論依據。
(3)由于板料漸進成形的成形特點,決定了對其成形工藝過程進行有限元模擬時必然要耗費大量的機時,目前模擬方盒件20層成形需要上百小時,因此需對諸多影響模擬時間的因素如最小時間步、網格劃分、工具頭的速度控制以及建模規劃等方面進一步研究。
相關文章
- 2021-09-08BIM技術叢書Revit軟件應用系列Autodesk Revit族詳解 [
- 2021-09-08全國專業技術人員計算機應用能力考試用書 AutoCAD2004
- 2021-09-08EXCEL在工作中的應用 制表、數據處理及宏應用PDF下載
- 2021-08-30從零開始AutoCAD 2014中文版機械制圖基礎培訓教程 [李
- 2021-08-30從零開始AutoCAD 2014中文版建筑制圖基礎培訓教程 [朱
- 2021-08-30電氣CAD實例教程AutoCAD 2010中文版 [左昉 等編著] 20
- 2021-08-30電影風暴2:Maya影像實拍與三維合成攻略PDF下載
- 2021-08-30高等院校藝術設計案例教程中文版AutoCAD 建筑設計案例
- 2021-08-29環境藝術制圖AutoCAD [徐幼光 編著] 2013年PDF下載
- 2021-08-29機械AutoCAD 項目教程 第3版 [繆希偉 主編] 2012年PDF