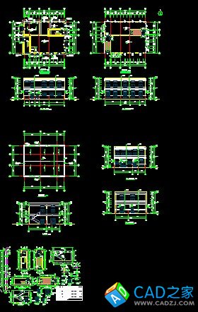
某辦公區內部配電房建筑施工圖
- 軟件大小:276 KB
- 更新時間:2014-08-18
- 軟件授權:免費下載
- 所屬欄目:CAD圖紙大全
- 軟件情況:綠色安全免費下載
- 軟件語言:簡體中文
- 應用平臺:windows xp/vista/win7/
- 本站地址:CAD之家 www.drbzy.com
軟件介紹
本工程所在位置按總平面圖內坐標確定。本建筑與周圍建筑及退界距離見總平面圖中有關標注。
本建筑±0.000相當于絕對標高及室內外高差見上工程概況表。本圖所注地面、樓面、平臺為建筑完成標高,屋面標高為結構面標高,門洞及窗洞口標高為結構留洞標高。

[ 下載地址1 ]