濰坊某十四層商住樓建筑結構水暖電施工圖下載
- 軟件大小:10 MB
- 更新時間:2017-07-18
- 軟件授權:免費下載
- 所屬欄目:CAD經典實例
- 軟件情況:綠色安全免費下載
- 軟件語言:簡體中文
- 應用平臺:windows xp/vista/win7/
- 本站地址:CAD之家 www.drbzy.com
軟件介紹
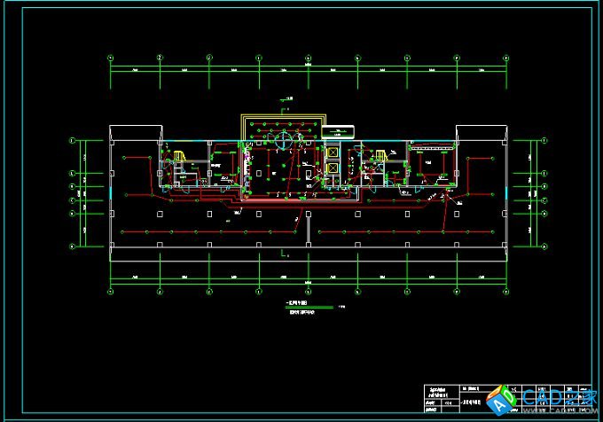
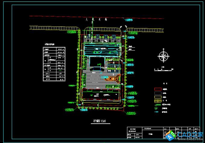
濰坊某十四層商住樓建筑結構水暖電施工圖
2.1 工程名稱:xxx首府二期。
2.2 工程地點:xx市區,北側為人民大街,西側為xx購物超市。
2.3 建設單位:濰坊福城置業有限公司。
2.4 本工程建筑層數:14層;建筑高度:47.6m(室外地面至主要屋面頂)。
2.5 本工程占地面積854.24m2 ;建筑面積12613.4m2 。
2.6 本工程為二類高層建筑,建筑耐火等級為一級;辦公建筑分類:二類。
2.7 本工程結構安全等級為二級,建筑主體合理使用年限50年。
2.8 本工程一層主要功能為設備用房、二層主要功能為辦公寫字樓、三~十四層主要功能為公寓式辦公樓。
2.9 本工程生活、消防水池水泵房與一期工程合用,設在一期工程地下室內。
2.10 抗震設防烈度為七度。





[ 下載地址1 ]
推薦下載