村委會活動中心建筑施工圖及效果圖免費下載
- 軟件大小:11 MB
- 更新時間:2017-04-24
- 軟件授權:免費下載
- 所屬欄目:CAD經典實例
- 軟件情況:綠色安全免費下載
- 軟件語言:簡體中文
- 應用平臺:windows xp/vista/win7/
- 本站地址:CAD之家 www.drbzy.com
軟件介紹
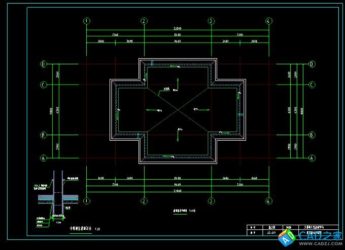
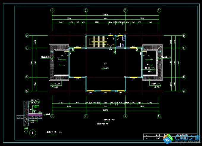
活動中心建筑施工圖紙包括一層平面圖、二層平面圖、三層平面圖、屋面層平面圖、屋面排水平面圖、立面圖、剖面圖、樓梯平面圖、衛生間詳圖、樓梯剖面圖、節點大樣圖、門窗表及門窗大樣圖等。





[ 下載地址1 ]
推薦下載