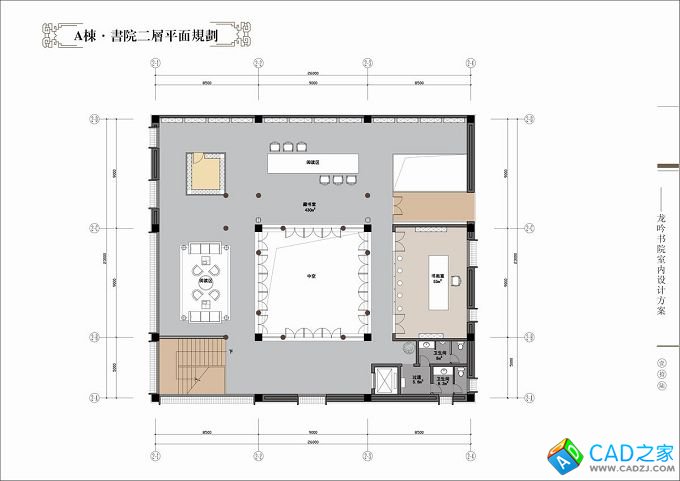
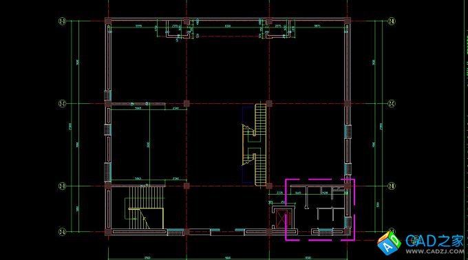
中式書院施工圖 龍吟書院效果圖方案建筑施工圖
- 軟件大小:240 MB
- 更新時間:2018-04-11
- 軟件授權:免費下載
- 所屬欄目:CAD經典實例
- 軟件情況:綠色安全免費下載
- 軟件語言:簡體中文
- 應用平臺:windows xp/vista/win7/
- 本站地址:CAD之家 www.drbzy.com
軟件介紹
中式書院施工圖 石膏山龍吟書院效果圖方案+室內CAD施工圖+建筑施工圖
















[ 下載地址1 ]
推薦下載
中式書院施工圖 石膏山龍吟書院效果圖方案+室內CAD施工圖+建筑施工圖















