江西南康華瑞地產辦公室施工圖+實景圖下載
- 軟件大小:5.9 MB
- 更新時間:2016-07-21
- 軟件授權:免費下載
- 所屬欄目:CAD經典實例
- 軟件情況:綠色安全免費下載
- 軟件語言:簡體中文
- 應用平臺:windows xp/vista/win7/
- 本站地址:CAD之家 www.drbzy.com
軟件介紹
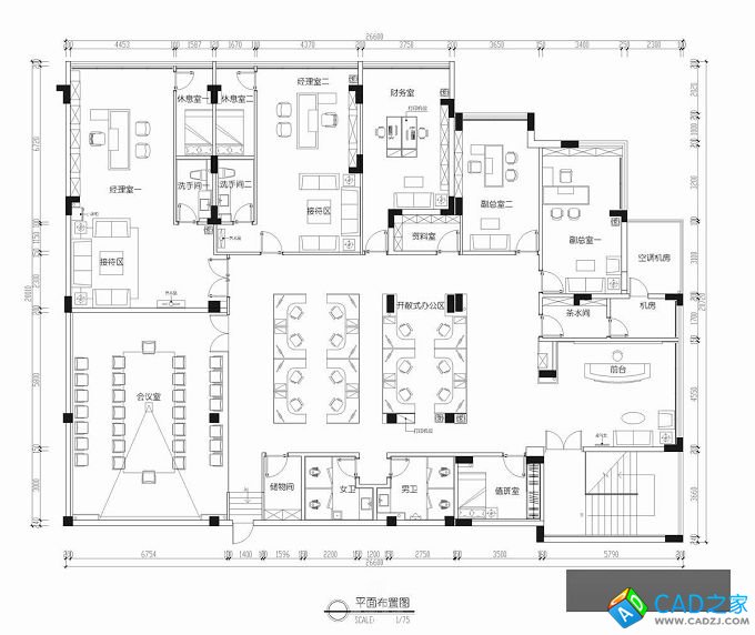
王五平設計--江西南康華瑞地產辦公室施工圖+實景圖








[ 下載地址1 ]
推薦下載
王五平設計--江西南康華瑞地產辦公室施工圖+實景圖







