波司登店鋪展示設計CAD圖紙下載
- 軟件大小:43 MB
- 更新時間:2015-09-02
- 軟件授權:免費下載
- 所屬欄目:CAD經典實例
- 軟件情況:綠色安全免費下載
- 軟件語言:簡體中文
- 應用平臺:windows xp/vista/win7/
- 本站地址:CAD之家 www.drbzy.com
軟件介紹
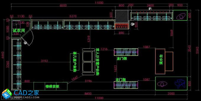
3套波司登店鋪展示設計CAD圖紙
波司登企業Si(SI,即連鎖品牌形象。相比于由大型企業集團實行品牌戰略在國內引領起的CI、VI設計熱潮不同,SI只是針對于有連鎖加盟性質的企業而實施的店鋪形象設計與管理系統。)








[ 下載地址1 ]