山西融高光伏寫字樓CAD施工圖及效果圖下載
- 軟件大小:30 MB
- 更新時間:2015-07-31
- 軟件授權:免費下載
- 所屬欄目:CAD經典實例
- 軟件情況:綠色安全免費下載
- 軟件語言:簡體中文
- 應用平臺:windows xp/vista/win7/
- 本站地址:CAD之家 www.drbzy.com
軟件介紹
施工圖簡介
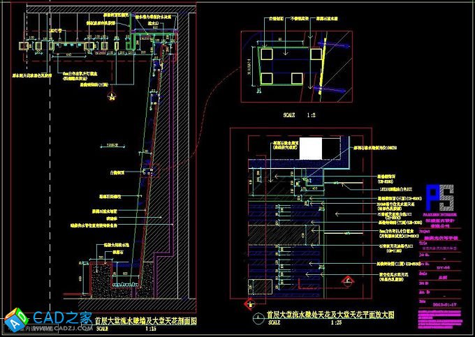
項目名稱: 山西 · 融高光伏寫字樓
CAD格式: AutoCAD 2008
文件大小: 33MB(施工圖8MB,效果圖25MB)
施工圖來源: 廣州柏盛設計公司
施工圖內容: 平面 立面 大樣 物料表









[ 下載地址1 ]