某知名連鎖快餐店室內裝修施工圖含效果圖
- 軟件大小:11 MB
- 更新時間:2015-06-02
- 軟件授權:免費下載
- 所屬欄目:CAD經典實例
- 軟件情況:綠色安全免費下載
- 軟件語言:簡體中文
- 應用平臺:windows xp/vista/win7/
- 本站地址:CAD之家 www.drbzy.com
軟件介紹
某知名連鎖快餐店室內裝修施工圖含效果圖
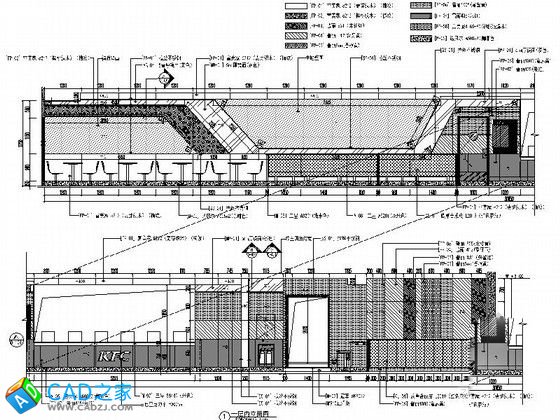
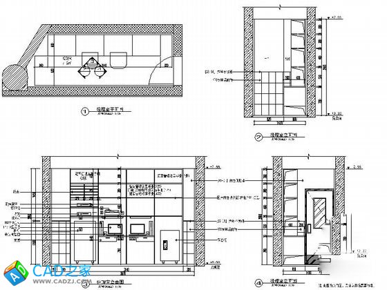
包含:目錄、設計說明、材料說明、原始現狀圖、平面布置圖、綜合天花圖、燈具定位圖、地坪布置圖、定位圖、索引圖、立面(外觀、兒童區、卡座區、收銀區、經理室、員工室……)節點大樣(服務臺、隔斷……)
另含:效果圖2張 方案圖7張










[ 下載地址1 ]
推薦下載