泰州世茂河濱花園五室兩廳三衛施工圖CAD圖紙下載
- 軟件大小:3.4 MB
- 更新時間:2017-01-04
- 軟件授權:免費下載
- 所屬欄目:室內圖紙
- 軟件情況:綠色安全免費下載
- 軟件語言:簡體中文
- 應用平臺:windows xp/vista/win7/
- 本站地址:CAD之家 www.drbzy.com
軟件介紹
泰州世茂河濱花園施工圖簡介
CAD格式:AutoCAD 2004
文件大小:5MB
設計師:沈烤華
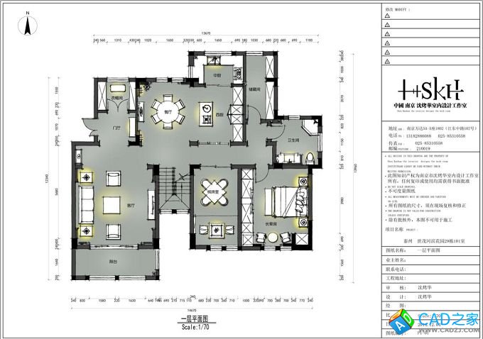
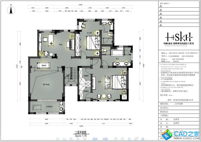
項目地址:泰州世茂河濱花園
CAD格式:AutoCAD 2004
文件大小:5MB
設計師:沈烤華
項目地址:泰州世茂河濱花園
設計公司:南京SKH室內設計工作室
整體軟裝:南京SKH室內設計工作室
整體軟裝:南京SKH室內設計工作室
主筆設計:沈烤華
參與設計:王亞平 崔巍 潘虹 王志 薛成 尤一楓 黃泳煉
攝 影: ingalleryTM工作室
建筑面積:358平方米 (五房二廳三衛)
合作方式:全程托管
用材品牌:科勒衛浴 帝柏木作 加百列冷暖 麥克馬尼窗簾布藝 慕思床墊 進口地毯 純手工藝術油畫 金鷹艾格地板
建筑面積:358平方米 (五房二廳三衛)
合作方式:全程托管
用材品牌:科勒衛浴 帝柏木作 加百列冷暖 麥克馬尼窗簾布藝 慕思床墊 進口地毯 純手工藝術油畫 金鷹艾格地板






[ 下載地址1 ]
推薦下載