二層經典中式餐廳裝修施工圖CAD圖紙下載
- 軟件大小:4 MB
- 更新時間:2017-04-18
- 軟件授權:免費下載
- 所屬欄目:CAD經典實例
- 軟件情況:綠色安全免費下載
- 軟件語言:簡體中文
- 應用平臺:windows xp/vista/win7/
- 本站地址:CAD之家 www.drbzy.com
軟件介紹
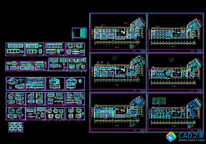
二層經典中式餐廳裝修施工圖
說明:包括二樓地面拼花布置圖、一樓地面拼花布置圖、二樓平面布置圖、二樓頂面布置圖,供大家參考!




[ 下載地址1 ]
推薦下載