如何使用中望CAD進行蓋板繪制
題目:根據蓋板的主視圖,使用中望CAD來畫俯視圖。

下面是使用中望CAD畫俯視圖的畫法:
第一步:根據上面的主視圖,畫俯視圖的輔助線。
1、圖層選擇虛線層,![]()
2、輸入命令xl,或者點擊軟件左側的構造線按鈕“
”來繪制構造線。
3、根據主視圖的各個端點畫出構造線。

(輔助線)
4、根據蓋板的寬度會回蓋板的邊,圖層選擇輪廓層
![]()
5、使用“L”命令,或者點擊左側工具欄的直線按鈕“
”,來繪制俯視圖的輪廓線。
6、根據設計要求蓋板寬度要求為83,那么我們就使用直線在之前的輔助線上繪制出蓋板的寬線。然后把整個蓋板的外輪廓畫出。如下圖:

第二步:畫蓋板上的螺絲孔。
1、利用軸線定位螺絲孔的中心位置,在圖層工具欄選擇紅色3中心線層
![]()
2、選擇直線畫出軸線,然后選擇輪廓線圖層,用圓畫出螺絲孔。如下圖:

(螺絲孔)
第三步:圖形的修整。
1、刪除黃色的輔助線。方法有很多,可以點選這些線后,點擊鍵盤上的delete鍵,也可以用鼠標點擊右邊的刪除功能按鈕來刪除“
”
2、使用“td”快捷命令,或用鼠標點擊右邊的打斷功能按鈕來對![]()
3、輸入“dj”,或者點擊右側的機械功能面板中的“構造工具”,選擇“倒圓/倒角”,點選其中的“ZWCAD圓角”來對蓋板螺絲孔附近的邊角進行修正。

修整后的圖形如下:
(修整后)
第四步:標注。
1、尺寸標注,點擊右側的機械功能面板中的“尺寸標注”,選擇“智能標注”。來標注俯視圖上的長,寬,倒角等。
2、點擊右側的機械功能面板中的“尺寸標注”,選擇“直徑標注”中的dial3。來標注螺絲孔的直徑。
3、點擊右側的機械功能面板中的“符號標注”,選擇“粗糙度”,對相關面的粗糙度進行標注,或輸入命令“rough”。

4、雙擊尺寸標注可對尺寸標注和符號進行相關的修改,使其符合做工需求。

5、對相關內容進行形位公差標注,點擊右側的機械功能面板中的“符號標注”,選擇“形位公差”,或輸入命令“xwgc”。

6、對尺寸標注加入相關標注檢驗。以提示對該尺寸的檢驗率。在菜單“標注”中選擇“檢驗”,調出尺寸檢驗的界面,或者輸入命令“diminspect”調出。界面如下圖:

然后,根據實際需求,標寫檢驗率。
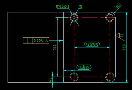
最后,我們完成了所有標注,如下圖:

第五步:繪制圖框
1、點擊右側的機械功能面板中的“圖紙”,選擇“圖紙設置”。出現如下圖所示界面:

我們圖幅選擇A4,布置方式選擇“豎置”,其他默認。然后點擊確定,這樣在繪圖區會自動生產一個圖框,選擇這個圖框,使用“M”命令,拖動圖框是其把我們的所畫圖包含進去,調整到合適的位置。如下圖:

2、點擊右側的機械功能面板中的“圖紙”,選擇“標題欄填寫”,“附加欄填寫”對各個欄目進行賦值。
3、點擊右側的機械功能面板中的“文字處理”,選擇“技術統計”,在彈出的面板中對技術條件進行填寫。
4、最后,對于其他的說明,列入蓋板其他地方的粗糙度是多少,按照慣例一般標寫在圖紙的左上角。
這樣,我們一副簡單的蓋板圖紙基本完成了,如下圖:

總結:蓋板這個圖形比較簡單,但是從他的繪制過程,我們基本可以把在機械繪圖中所用到的基本操作用到。某些功能的使用需要根據實際情況來進行。個人感覺,使用中望機械軟件,在制造業領域可以很好的提升設計速度,給工業設計帶來質的飛躍。
(文/Vincent)
相關文章
- 2021-09-08BIM技術叢書Revit軟件應用系列Autodesk Revit族詳解 [
- 2021-09-08全國專業技術人員計算機應用能力考試用書 AutoCAD2004
- 2021-09-08EXCEL在工作中的應用 制表、數據處理及宏應用PDF下載
- 2021-08-30從零開始AutoCAD 2014中文版機械制圖基礎培訓教程 [李
- 2021-08-30從零開始AutoCAD 2014中文版建筑制圖基礎培訓教程 [朱
- 2021-08-30電氣CAD實例教程AutoCAD 2010中文版 [左昉 等編著] 20
- 2021-08-30電影風暴2:Maya影像實拍與三維合成攻略PDF下載
- 2021-08-30高等院校藝術設計案例教程中文版AutoCAD 建筑設計案例
- 2021-08-29環境藝術制圖AutoCAD [徐幼光 編著] 2013年PDF下載
- 2021-08-29機械AutoCAD 項目教程 第3版 [繆希偉 主編] 2012年PDF