一. 圖紙幅面
㈠ 圖紙幅面
繪制機械圖樣時,優先采用5種規定的圖紙基本幅面,分別是:A0、A1、A2、A3、A4。必要時,也允許選用所規定的加長幅面。加長幅面的尺寸由基本幅面的短邊成整數倍增加后得出。
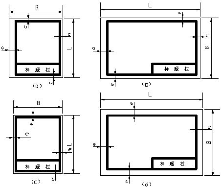
㈡ 圖框格式
在圖紙上,圖框線必須用粗實線畫出,其格式分為不留裝訂邊和留有裝訂邊兩種,見機械制圖手冊,但同一產品的圖樣只能采用一種格式。

㈢ 標題欄
gb/t10609.1-89對標題欄的內容、格式和尺寸作了規定,標題欄的文字方向應為看圖方向,標題欄的外框為粗實線,里邊是細實線,其右邊線和底邊線應與圖框線重合。
二. 比例(gb/t14690-93)
比例是圖中圖形與實物相應要素的線性尺寸之比。需要按比例繪制圖樣時,應由規定的系列中選取適當的比例。
為了能從圖樣上得到實物大小的真實感,應盡量采用原值比例(1:1),當機件過大或過小時,可選用表規定的縮小或放大比例繪制,但尺寸標注時必須注實際尺寸。一般來說,繪制同一機件的各個視圖應采用相同的比例,并在標題欄中填寫。當某個視圖需要采用不同比例時,可在視圖名稱的下方或右側標注比例:
三. 字體(gb/t14691-93)
圖樣中書寫的字體必須做到:字體工整、筆畫清楚、間隔均勻、排列整齊。
字體的高度(用h表示)的公稱尺寸系列為1.8,2.5,3.5,5,7,10,14,20mm。字體高度代表字體的號數。
㈠ 漢字
漢字應寫成長仿宋體,并應采用國家正式公布推行的簡化字。漢字的高度不應小于3.5mm,其字寬一般為字高的2/3。長仿宋體的書寫要領是:橫平豎直,注意起落,結構勻稱,填滿方格.
㈡ 數字和字母
數字和字母有直體和斜體兩種。一般采用斜體,斜體字字頭向右傾斜,與水平線約成75°角。在同一圖樣上,只允許選用一種形式的字體。
四. 圖線(gb/t17450-1998)
㈠ 圖線線型及其應用
gb/t17450-1998《技術制圖 圖線》中規定了15種基本線型,每種基本線型的變形有四種。圖線的寬度(用d表示)分為粗線、中粗線、細線三種,其比例關系是4:2:1。機械圖樣上多采用兩種線寬。建筑圖樣上可以采用三種線寬。所有線型的圖線寬度應按圖樣的類型和尺寸大小在下列數系中選擇:0.18,0.25,0.35,0.5,0.7,1,1.4,2mm。寬度為0.18mm的圖線在圖樣復制中往往不清晰,盡量不采用。
目前,在機械圖樣中仍采用gb4457.4-84中規定的8種線型:粗實線、細實線、波浪線、雙折線、虛線、粗點劃線、細點劃線、雙點劃線。如表1-3所示。
㈡ 圖線的畫法
⒈ 同一圖樣中同類圖線的寬度應基本一致,虛線、點畫線、雙點畫線的線段長度和間隔應各自大致相等,在圖樣中要顯得勻稱協調。
⒉ 繪制點劃線時,首末兩端及相交處應是線段而不是短劃,超出圖形輪廓2~5mm。在較小的圖形上繪制點劃線和雙點劃線有困難時,可用細實線代替。
⒊ 虛線與虛線相交,或與其他圖線相交時,應以線段相交,當虛線為實線的延長線時,應留有間隙,以示兩種不同線型的分界線。
五. 尺寸標注(gb4458.4-84)
㈠ 基本規則
⒈ 圖樣中的尺寸,以mm為單位時,不需注明計量單位代號或名稱。若采用其他單位則必須注明相應計量單位或名稱。⒈ 尺寸界線 尺寸界線用細實線繪制,一般是圖形的輪廓線、軸線或對稱中心線的延長線,超出尺寸線約2~3mm。也可直接用輪廓線、軸線或對稱中心線作尺寸界線。尺寸界線一般與尺寸線垂直,必要時允許傾斜。
⒉ 尺寸線 尺寸線用細實線繪制,必須單獨畫出,不能用其他圖線代替,一般也不得與其他圖線重合或畫在其延長線上。并應盡量避免尺寸線之間及尺寸線與尺寸界線之間相交。尺寸線應與所標注的線段平行,平行標注的各尺寸線的間距要均勻,間隔應大于5mm,同一張圖紙的尺寸線間距應相等。
標注角度時,尺寸線應畫成圓弧,其圓心是該角的頂點。
⒊ 尺寸線終端 尺寸線終端有兩種形式,箭頭或細斜線。如圖1-9所示。箭頭適用于各種類型的圖樣。當尺寸線終端采用細斜線形式時,尺寸線與尺寸界線必須垂直。同一張圖樣中,只能采用一種尺寸線終端形式。采用箭頭形式時,在位置不夠的情況下,允許用圓點或斜線代替。
⒋ 尺寸數字 線性尺寸的數字一般注寫在尺寸線上方或尺寸線中斷處。尺寸數字不能被任何圖線通過,否則應將該圖線斷開。
尺寸數字前的符號區分不同類型的尺寸:
φ-表示直徑 r-表示半徑 s-表示球面 t-表示板狀零件厚度 □-表示正方形 (或 )-表示錐度 ∠(或 )-表示斜度
㈡ 各類尺寸標注示例
⒈ 線性尺寸的注法 線性尺寸的數字應按圖1-11a中所示的方向注寫,即以標題欄方向為準,水平方向字頭朝上,垂直方向字頭朝左,傾斜方向時字頭有朝上趨勢。
相關文章
- 2021-09-08BIM技術叢書Revit軟件應用系列Autodesk Revit族詳解 [
- 2021-09-08全國專業技術人員計算機應用能力考試用書 AutoCAD2004
- 2021-09-08EXCEL在工作中的應用 制表、數據處理及宏應用PDF下載
- 2021-08-30從零開始AutoCAD 2014中文版機械制圖基礎培訓教程 [李
- 2021-08-30從零開始AutoCAD 2014中文版建筑制圖基礎培訓教程 [朱
- 2021-08-30電氣CAD實例教程AutoCAD 2010中文版 [左昉 等編著] 20
- 2021-08-30電影風暴2:Maya影像實拍與三維合成攻略PDF下載
- 2021-08-30高等院校藝術設計案例教程中文版AutoCAD 建筑設計案例
- 2021-08-29環境藝術制圖AutoCAD [徐幼光 編著] 2013年PDF下載
- 2021-08-29機械AutoCAD 項目教程 第3版 [繆希偉 主編] 2012年PDF