一、前言
國家重點水利樞紐工程--黃河小浪底排沙洞弧門三扇,明流洞弧門三扇(包括與之配套的門槽、門楣、門坎)共計六組套。它們外形尺寸大,較重,技術要求高,制造難度大。本文重點介紹明流洞弧門門葉的弧面加工工裝制造與弧面加工過程。
明流洞弧門單重407t,弧門門葉高12 000mm,寬8 000mm 弧面迎水面半徑R=20 000±2mm,平面度≤□200:0.15,表面粗糙度Ra12.5µm,分左、右兩瓣制造,并退火,整體加工。出廠前,要將門坎在廠內進行組裝,檢查結合面的密封精度并驗收。
二、弧門門葉外圓加工工裝設計與制造
一般大型水利工程機械零件的加工都是將加工件安裝在用成型鋼材組焊的工裝上,切削裝置和刀具沿加工件移動進行切削加工。
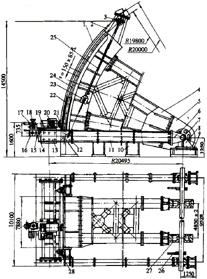
明流洞弧門門葉外圓加工工裝設計是在原加工排沙洞弧門門葉工裝基礎上進行了改造,如圖1所示;加長了銑削床身13、支臂11、中心軸7。工裝兩支臂在加工過程中要求每節成對加工,長度保證誤差在±1mm的范圍內。中心軸7與工裝活動支鉸6、兩支臂11及銑削床身13組裝一體后要保證各件的水平度和與連接件的垂直度要求。中拖板19大拖板15與床身13分別進行配刮與研磨,保證其水平度和垂直度誤差≤0.05mm(全長范圍內)。

1.弧門門葉 2.起吊門架 3.弓形卸扣 4.弧門支架 5.活動支鉸 6.工裝活動支鉸 7.中心軸 8.工裝固定支鉸 9.底座 10弧門支架 11.長支臂 12.短支臂 13.銑削床身 14.傳動齒輪齒條副 15.大拖板 16.變速箱 17.進刀箱 18.手動輪 19.中拖板 20.動力頭 21.銑刀盤 22.定位板座 23.手動葫蘆 24.定位板 25.鋼絲繩 26.找正盤 27.定位盤 28.找正頂針
圖1 加工弧門門葉外圓工裝
工裝上設計有找正工具,以中心軸為基準通過找正盤26,找正頂針28分別找正弧門兩邊弧面外圓加工的基準線。
工裝上下移動依靠手動葫蘆23、起吊門架2、弓形卸扣3及鋼絲繩25控制。工裝動力頭在銑削弧門時,依靠定位板座22、定位板24連接固定。
傳動齒輪、齒條副14,變速箱16控制動力頭橫向走刀和速度調整。進刀箱17控制動力頭20進刀量。也可手動或微調。
三、弧門門葉外圓加工
1. 將組裝好的弧門門葉1支架4活動支鉸5連接成一個整體,按圖1(弧門工作位置)用支架10支承、固定并找正,要求弧面曲率半徑R=20 000mm 留5~8mm 加工余量。
2. 將中心軸7、定位盤27分別裝在弧門活動支鉸5孔中,利用找正盤26和拉尺及劃針,劃出弧門兩邊加工線(要求拉尺在70N拉力作用下使用)。
3. 分別將工裝活動支鉸6、固定支鉸8、裝在中心軸7上,并固定在底座9上。連接組裝好的兩支臂、件11、12以及床身13(床身上的動力頭、變速箱、進刀箱、大拖板、中拖板等應預先裝配完整并試好車)。
4. 弧門兩側面分別焊上可調的定位板24,工裝短支臂對應固定定位板座22。起吊門架焊在弧門頂部,掛上手動葫蘆及鋼絲繩,如圖1所示。
5. 利用裝在床身上的找正頂針28,以劃好的弧門加工線為基準,工裝以中心軸7為圓心,上下轉動檢查頂針與弧門兩側面加工線是否重合,如果尺寸有偏差,可調整兩支臂,使頂針與加工線吻合。
6. 弧門進行銑削時應由上向下進行,每次按定位板距150mm 位移后固定。第一刀為粗銑,留1~2mm余量,第二刀為精銑,銑到尺寸要求。
四、弧門加工工裝設計要點
動力頭、銑刀盤中心線應垂直弧門弧面的切線方向,方能進行銑削加工弧門,因為動力頭在床身上滑動并垂直床身,因此,床身與短支臂的連接,必須有一夾角才能滿足加工精度,如圖2所示。

1.床身頭部連接板 2.支臂中心線 3.支臂頭部連接板 4.床身中心線
圖2 床身與支臂連接
所以,床身中心與支臂中心在制造安裝時要求偏移2°03'夾角。
弧門弧面在加工過程中因走刀是一排排進行,刀盤有效加工寬度為150mm,刀盤直徑為250mm(走刀寬度為刀盤直徑的3/5)如圖3所示,1為加工后弧門輪廓線,2為加工前弧門輪廓線,其加工后的平面度為:
CD=OA-OC=20 000-19 999.86=0.14≤0.15(mm)

圖3 加工后的平面度
經生產加工后檢驗弧門平門度符合產品設計要求。
相關文章
- 2021-09-08BIM技術叢書Revit軟件應用系列Autodesk Revit族詳解 [
- 2021-09-08全國專業技術人員計算機應用能力考試用書 AutoCAD2004
- 2021-09-08EXCEL在工作中的應用 制表、數據處理及宏應用PDF下載
- 2021-08-30從零開始AutoCAD 2014中文版機械制圖基礎培訓教程 [李
- 2021-08-30從零開始AutoCAD 2014中文版建筑制圖基礎培訓教程 [朱
- 2021-08-30電氣CAD實例教程AutoCAD 2010中文版 [左昉 等編著] 20
- 2021-08-30電影風暴2:Maya影像實拍與三維合成攻略PDF下載
- 2021-08-30高等院校藝術設計案例教程中文版AutoCAD 建筑設計案例
- 2021-08-29環境藝術制圖AutoCAD [徐幼光 編著] 2013年PDF下載
- 2021-08-29機械AutoCAD 項目教程 第3版 [繆希偉 主編] 2012年PDF