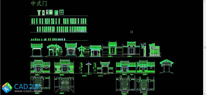
各種中式門、窗、護廊、柱子及裝飾畫CAD圖集大全
- 軟件大?。?/b>18.9 MB
- 更新時間:2015-08-21
- 軟件授權:免費下載
- 所屬欄目:CAD圖紙大全
- 軟件情況:綠色安全免費下載
- 軟件語言:簡體中文
- 應用平臺:windows xp/vista/win7/
- 本站地址:CAD之家 www.drbzy.com
軟件介紹
各種中式風格門、窗、護廊、柱子及裝飾畫CAD圖集大全





[ 下載地址1 ]
推薦下載
各種中式風格門、窗、護廊、柱子及裝飾畫CAD圖集大全




