蘭州五味壹品牛肉面室內裝飾設計施工圖下載
- 軟件大小:10 MB
- 更新時間:2017-02-11
- 軟件授權:免費下載
- 所屬欄目:CAD經典實例
- 軟件情況:綠色安全免費下載
- 軟件語言:簡體中文
- 應用平臺:windows xp/vista/win7/
- 本站地址:CAD之家 www.drbzy.com
軟件介紹
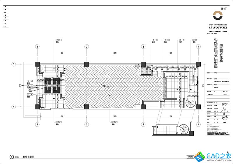
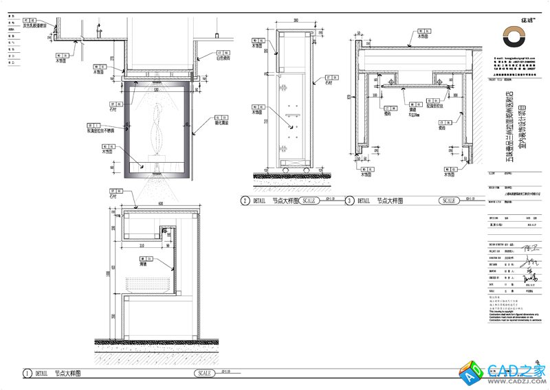
鑲蘭集之蘭州五味壹品牛肉面鄭州建設東路店門頭及室內裝飾設計施工圖
CAD格式: AutoCAD 2008
文件大小: 18.7MB
原創設計師: 衛&星 設計
施工圖內容: 平面 立面 節點 完工照片 效果圖




[ 下載地址1 ]
推薦下載