江南名樓混搭風格復式樓施工圖+高清實景圖
- 軟件大小:75 MB
- 更新時間:2016-12-13
- 軟件授權:免費下載
- 所屬欄目:CAD經典實例
- 軟件情況:綠色安全免費下載
- 軟件語言:簡體中文
- 應用平臺:windows xp/vista/win7/
- 本站地址:CAD之家 www.drbzy.com
軟件介紹
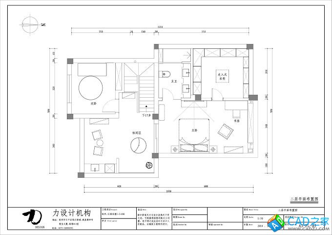
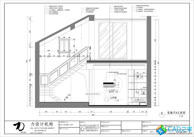
項目名稱:江南名樓-混搭風格復式樓施工圖+-高清實景
文件大小: 施工圖3.62MB 高清實景71.7MB
版本:CAD2010版
施工圖內容: 平面 立面 節點 施工圖 高清實景照片









[ 下載地址1 ]
推薦下載