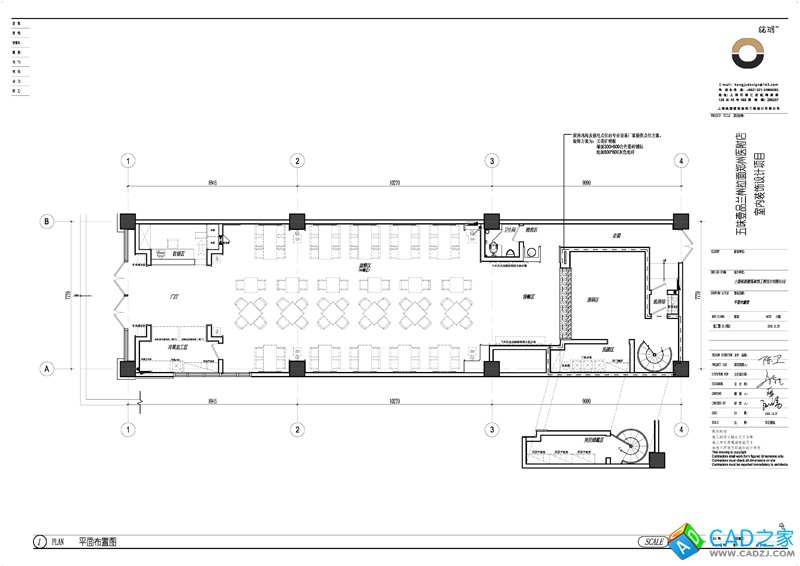
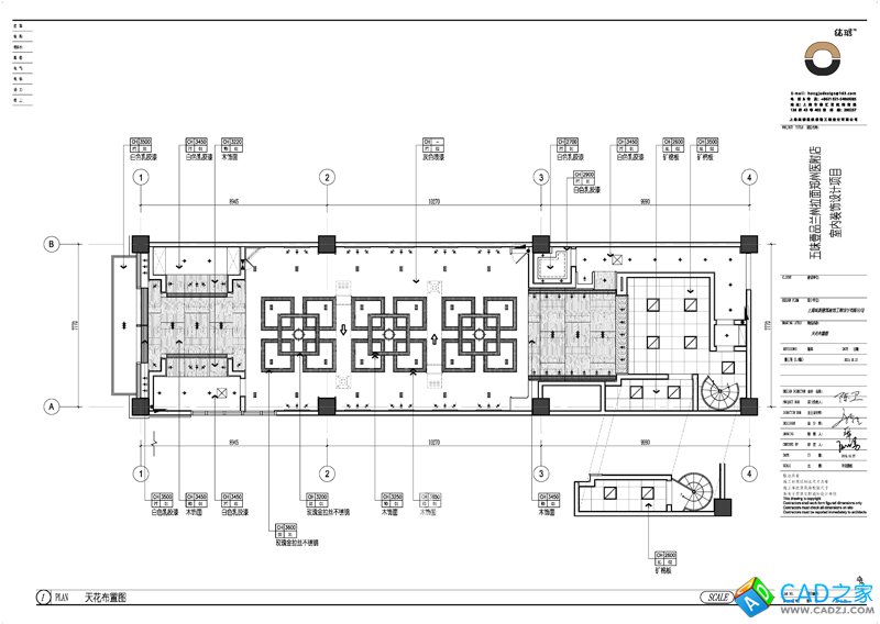
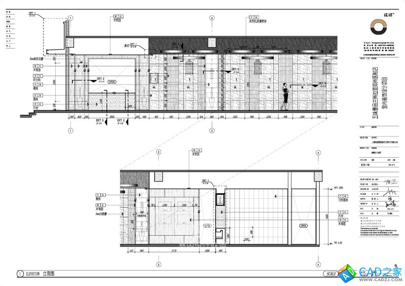
五味壹品牛肉面鄭州建設東路店門頭及室內裝飾設計施工圖
- 軟件大小:10 MB
- 更新時間:2016-08-29
- 軟件授權:免費下載
- 所屬欄目:CAD經典實例
- 軟件情況:綠色安全免費下載
- 軟件語言:簡體中文
- 應用平臺:windows xp/vista/win7/
- 本站地址:CAD之家 www.drbzy.com
軟件介紹
項目名稱: 鑲蘭集之蘭州五味壹品牛肉面鄭州建設東路店門頭及室內裝飾設計
CAD格式: AutoCAD 2008
文件大小: 10MB
原創設計師: 衛&星 設計
施工圖內容: 平面 立面 節點 完工照片 效果圖





[ 下載地址1 ]
推薦下載