中航城翡翠灣樣板房實景圖+裝修施工圖下載
- 軟件大小:8.9 MB
- 更新時間:2016-08-19
- 軟件授權:免費下載
- 所屬欄目:CAD經典實例
- 軟件情況:綠色安全免費下載
- 軟件語言:簡體中文
- 應用平臺:windows xp/vista/win7/
- 本站地址:CAD之家 www.drbzy.com
軟件介紹
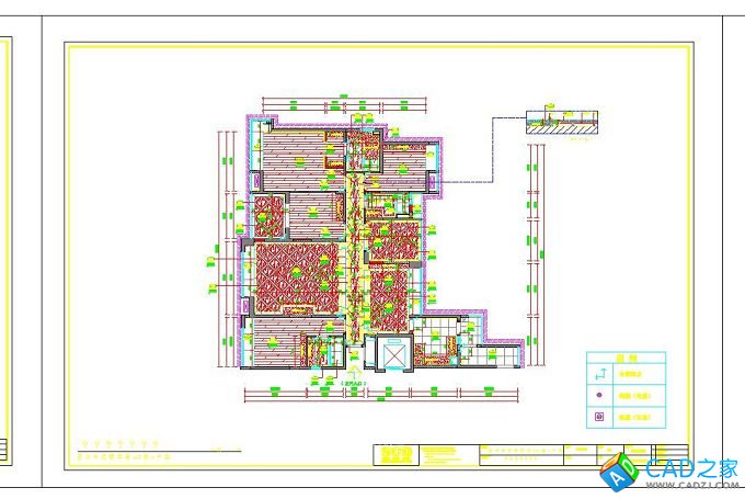
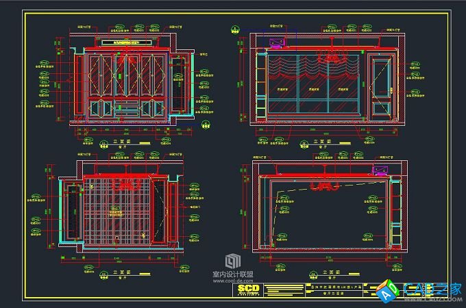
項目名稱: 鄭樹芬-歐式重構品質生活 .中航城翡翠灣樣板間
CAD格式: AutoCAD 2008
施工圖內容: 平面 立面 節點 設計說明 完工實景照片









[ 下載地址1 ]
推薦下載