葛喬治 上海佘山高爾夫V1-P型別墅施工圖下載
- 軟件大小:22 MB
- 更新時間:2016-08-16
- 軟件授權:免費下載
- 所屬欄目:CAD經典實例
- 軟件情況:綠色安全免費下載
- 軟件語言:簡體中文
- 應用平臺:windows xp/vista/win7/
- 本站地址:CAD之家 www.drbzy.com
軟件介紹
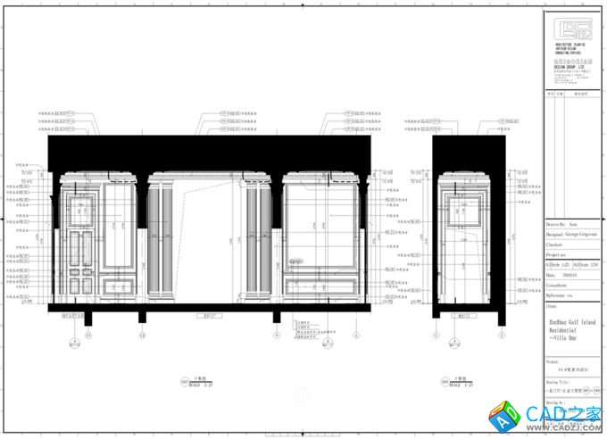
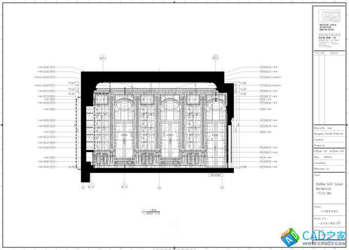
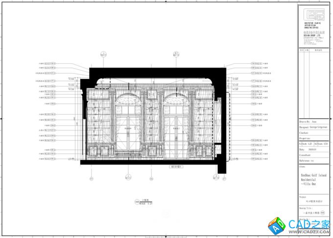
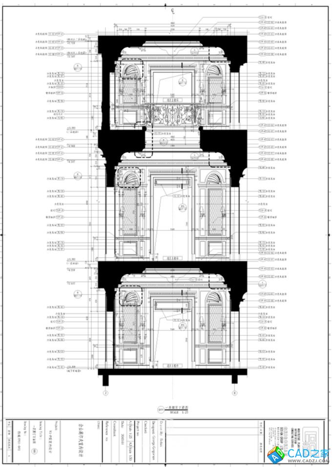
項目名稱: 上海佘山高爾夫V1-P型別墅
CAD格式: AutoCAD 2008
施工圖來源: 工程項目
施工圖內容: 平面 立面 節點





[ 下載地址1 ]
推薦下載