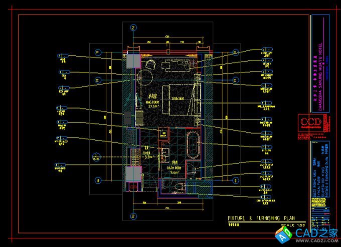
CCD長沙三景華御樣板房CAD全套施工裝修圖下載
- 軟件大小:17 MB
- 更新時間:2016-07-30
- 軟件授權:免費下載
- 所屬欄目:CAD經典實例
- 軟件情況:綠色安全免費下載
- 軟件語言:簡體中文
- 應用平臺:windows xp/vista/win7/
- 本站地址:CAD之家 www.drbzy.com
軟件介紹
項目名稱: CCD 長沙三景華御樣板房施工圖
CAD格式: AutoCAD 2007
施工圖內容: 平面 立面 節點 物料表 效果圖 方案概念 家具設計圖










[ 下載地址1 ]
推薦下載