麥當勞福建漳州丹霞店全套CAD施工圖下載
- 軟件大小:10 MB
- 更新時間:2015-06-26
- 軟件授權:免費下載
- 所屬欄目:CAD經典實例
- 軟件情況:綠色安全免費下載
- 軟件語言:簡體中文
- 應用平臺:windows xp/vista/win7/
- 本站地址:CAD之家 www.drbzy.com
軟件介紹
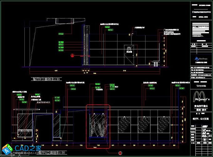
項目名稱: 麥當勞福建漳州丹霞店
CAD格式: AutoCAD 2004
文件大小: 29.9M
施工圖來源: 網絡
施工圖內容: 平面 立面 節點 物料表





[ 下載地址1 ]
推薦下載