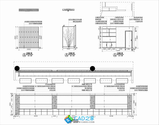
利百加設計面館施工圖CAD圖紙+效果圖下載
- 軟件大小:6.8 MB
- 更新時間:2015-04-09
- 軟件授權:免費下載
- 所屬欄目:CAD經典實例
- 軟件情況:綠色安全免費下載
- 軟件語言:簡體中文
- 應用平臺:windows xp/vista/win7/
- 本站地址:CAD之家 www.drbzy.com
軟件介紹
利百加設計面館施工圖CAD圖紙+效果圖下載
項目名稱: 面館施工圖+效果圖
AD格式: AutoCAD 2004以上
施工圖來源: 利百加設計
施工圖內容: 平面 立面 節點 高清效果圖







[ 下載地址1 ]
推薦下載