曲折木質花架景觀施工詳圖下載
- 軟件大小:173 KB
- 更新時間:2011-08-22
- 軟件授權:免費下載
- 所屬欄目:景觀圖紙
- 軟件情況:綠色安全免費下載
- 軟件語言:簡體中文
- 應用平臺:windows xp/vista/win7/
- 本站地址:CAD之家 www.drbzy.com
軟件介紹
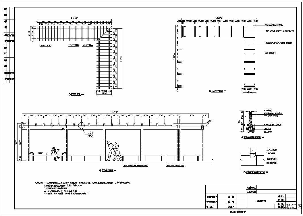
曲折木質花架景觀施工詳圖
木質曲折花架景觀詳圖包含頂平面、底平面、立面、剖面及節點,制圖標準規范。

[ 下載地址1 ]
推薦下載
曲折木質花架景觀施工詳圖
木質曲折花架景觀詳圖包含頂平面、底平面、立面、剖面及節點,制圖標準規范。
