最終效果:

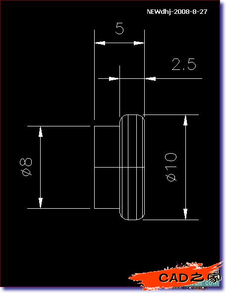
1、畫一個單元實體

2、對象定義塊,取名aa ,拾取點在圓心,確定

3、畫一條曲線

4、ME
命令: MEASURE
選擇要定距等分的對象:選曲線
指定線段長度或 [塊(B)]: b
輸入要插入的塊名: aa
是否對齊塊和對象?[是(Y)/否(N)] <Y>:Y
指定線段長度: 3.5

5、分解,配上接頭

6、渲染

相關文章
- 2021-08-30從零開始AutoCAD 2014中文版機械制圖基礎培訓教程 [李
- 2021-08-30從零開始AutoCAD 2014中文版建筑制圖基礎培訓教程 [朱
- 2021-08-30電氣CAD實例教程AutoCAD 2010中文版 [左昉 等編著] 20
- 2021-08-30高等院校藝術設計案例教程中文版AutoCAD 建筑設計案例
- 2021-08-29機械AutoCAD 項目教程 第3版 [繆希偉 主編] 2012年PDF
- 2021-08-21AutoCAD 2013建筑設計與施工圖繪制實例教程中文版 [麓
- 2021-08-21AutoCAD 2013機械繪圖實例教程中文版 [陳志民 等編著]
- 2021-08-20AutoCAD 2011建筑制圖案例教程中文版 [夏志新,沙新美,彭
- 2021-08-18天正TArch2013與AutoCAD 建筑制圖實戰教程 [景學紅,耿
- 2021-08-18圖形圖像設計專家Maya金典案例教程PDF下載